Tesla’s Florida Supercharger Station Will Have More Stalls Than Its New 164-Stall Station In California.

Tesla is gearing up to redesign electric vehicle (EV) charging infrastructure with the announcement of a groundbreaking Supercharger site that contains over 200 stalls. The company’s plans for expansion focus on setting new benchmarks in charging capacity and sustainability, reaffirming Tesla’s commitment to enhancing EV accessibility.
Florida’s Yeehaw Junction and California’s Kern County are going to become home to the world’s largest Supercharger stations, boasting unprecedented charging capacity and innovative features. These projects represent a significant leap forward in EV charging infrastructure and offer a glimpse into the future of sustainable transportation.

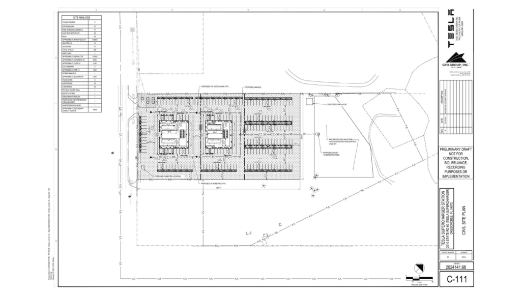
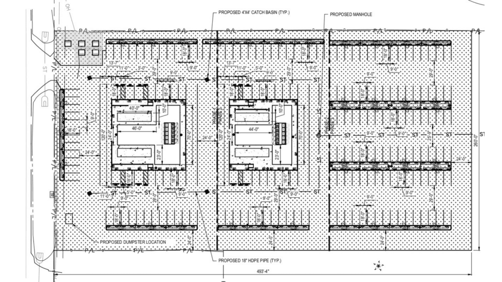
Tesla has submitted plans for a monumental “Mega Site” at Exit 193 of the Florida Turnpike in Yeehaw Junction. This massive site will feature over 200 Supercharger stalls, including 160 Prefabricated Supercharger Unit (PSU) stalls and 40 standalone stalls. Notably, eight of these stalls will be designated for trailers, catering to the diverse needs of EV drivers.

The Florida Supercharger station site plans reveal a progressive construction approach, with stalls opening in three phases to accommodate growing demand. Additionally, the station will be equipped with a microgrid consisting of solar canopies and Tesla Megapacks, enabling peak demand shaving and reducing the cost of charging.
In Kern County, California, Tesla’s vision for EV charging infrastructure continues to unfold. Just over a month ago, it was announced that Tesla was planning to construct a new Supercharger station in California, set to become the world’s largest with 164 stalls. The station will have solar canopies above each parking spot, harnessing solar energy to power EV charging operations.
Tesla’s enterprising Supercharger projects underline the company’s path to an unwavering commitment to expanding EV charging infrastructure. By expanding charging capacity and integrating renewable energy sources, these initiatives not only address the growing demand for EV charging but also contribute to reducing carbon emissions and combating climate change. As Tesla continues to push the boundaries of EV technology and infrastructure, the largest Supercharger stations in Florida and California serve as beacons of progress and innovation.
If you are looking for Tesla models, we can help you get started. Click Here to find the best deals near you. Want to learn more about EV? Thinking of buying an EV? Head over to EV.com and discover more.
Results in 30 days - Or We'll Give You Your Money Back

